Ontwerp

Ontwerp:

Een mooie tuin begint met een doordacht ontwerp, u bent hiervoor bij lokkemientje hoveniers aan het juiste adres.

Eerste gesprek ter oriëntatie
Het eerste gesprek is geheel vrijblijvend. Het kan naar wens plaatsvinden bij u thuis of op ons tuincentrum.
Tijdens dit gepsrek probeert de tuinarchitect samen met u een beeld te vormen van uw toekomstige tuin en de werkzaamheden die daarbij komen kijken.
Belangrijk is dat u thuis alvast nadenkt over persoonlijke wensen voor uw tuin.

Denk hierbij vooral aan de volgende punten:
- Op welke manier gaat u gebruik maken van de tuin?
- Welke sfeer moet uw tuin oproepen?
- Welke stijl spreekt u aan?
- Welke materialen spreken u aan?

Daarnaast hebben we natuurlijk enkele gegevens van uw tuin nodig.
- In welke omgeving ligt de tuin?
- Handig is de bouwtekening van uw huis met de maten van het perceel.

- Ook kunnen wij bij u langs komen om te bekijken in welke omgeving uw tuin ligt, en natuurlijk kunnen wij de maten opmeten of opvragen voor u.

Wanneer u tijdens dit gesprek besluit uw tuin door ons te laten ontwerpen, krijgt u van ons een prijsopgave voor het tuinontwerp en/of beplantingsplan.

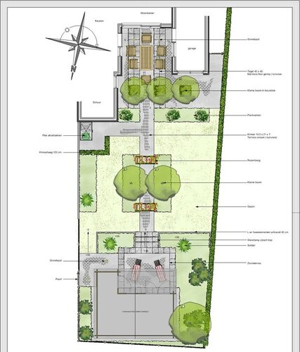
Tuinontwerp
De eerste fase van het ontwerp is het zogenaamde schetsontwerp, dat door middel van een digitaal tekenprogramma wordt gepresenteerd.
Gangbaar is dat er één à twee schetsontwerpen gemaakt worden. Hier kunt u in een volgend gesprek uit kiezen. Een van de ontwerpen wordt dan, na eventueel te zijn aangepast aan uw wensen, verder uitgewerkt.

Beplantingsplan en eventueel Verlichtingsplan
Wanneer het ontwerp is uitgewerkt, kan er gekozen worden voor een passend beplantings- en verlichtingsplan om uw tuin de ultieme uitstraling te geven waar u naar zoekt. Wij houden hierbij rekening met persoonlijke wensen en grondsoort binnen uw tuin.

Uitzoeken van de Materialen
We doorlopen met u de mogelijkheden die het gekozen ontwerp biedt. Veruit de meeste materialen voor in uw tuin, zijn aanwezig op ons tuincentrum.

Werkzaam in de omgeving van:

Edam, Volendam, Amsterdam, Purmerend, Hoorn, Zaandam en omgeving.

Bekijk meer productgroepen in de categorie Hoveniers